专业低温设备定制

Customization of professional low-temperature equipment

分子束外延MBE液氮循环系统

分子束外延MBE是一种在超高真空环境下制备高质量单晶薄膜的关键技术。为了实现极佳的材料纯度和精确的界面控制,液氮循环系统必须有效地抑制来自腔体内部的热辐射和残余气体污染。


配件:液氮储罐、绝热真空管道、气液分离器、控制元件、冷阱

描述介绍

  分子束外延(MBE)是一种在超高真空环境下制备高质量单晶薄膜的关键技术。为了实现极佳的材料纯度和精确的界面控制,MBE系统必须有效地抑制来自腔体内部的热辐射和残余气体污染。

  一、 液氮制冷系统在MBE中的核心功能与重要性

  液氮制冷系统通过其-196°C的极低温,主要实现以下三个关键功能:

  热辐射屏蔽:MBE生长腔室内的加热源(如衬底加热块、 effusion cell 炉子)温度高达数百度甚至上千度,会产生强烈的热辐射。这些热辐射会直接或间接加热其他部件(如腔壁、快门),导致其放气,破坏真空度,并成为污染源。液氮冷阱和 shrouds 通过吸收这些热辐射,极大地降低了腔室的背景热负载,维持了系统的热稳定性。

  捕获残余气体: 即使在超高真空下,腔室内仍存在微量的残余气体分子(如H₂O, CO, CO₂, O₂等)。这些分子一旦吸附在生长的晶格表面,就会成为致命的杂质。液氮冷却的表面(特别是内部包裹式冷屏)像一个“低温捕集器”,当残余气体分子碰撞到其表面时,会因失去动能而被牢牢“冻结”吸附,从而有效地将这些污染物从真空环境中移除,创造出一种“超洁净”的生长环境。这是获得高迁移率半导体材料(如GaAs、AlGaAs)的前提。

  保护关键部件: 液氮系统也常用于冷却MBE的另一个核心部件——反射式高能电子衍射(RHEED)枪。RHEED枪在工作时会产生大量热量,若不有效冷却,其自身的热变形和放气会严重影响电子束的稳定性和真空度。液氮冷却确保了RHEED信号的稳定和精确,为原位实时监控晶体生长提供了保障。

管路安装

汽化器安装

  二、 液氮制冷系统的组成与工作原理

  一套完整的MBE液氮输送与循环系统通常由以下几部分组成:(需要根据客户系统情况配置)

  液氮储罐/或小型液氮杜瓦: 大型的室外储罐或可移动的杜瓦瓶,用于储存液氮。

  真空绝热传输管道: 连接液氮储罐和MBE主机的管道,其双层真空结构能大限度地减少液氮在输送过程中的汽化损失。

  液氮纯化系统即气液分离器,成套的液氮传输系统不可缺少气液分离器系统,用于纯化液氮在管路传输过程中所汽化的部分液体,并排出气体,保持系统温度低化。

  分配与控制单元: 系统的“大脑”。通常包括:


  1. 液位传感器: 实时监测冷阱内的液氮液位。
  2. 电磁阀: 根据液位信号控制液氮的注入与切断。
  3. 压力传感器: 调节输送压力。
  4. 安全泄压阀: 在系统节点上安装泄压阀,确保系统压力不会过高,防止危险。


  冷头/冷阱:安装在MBE腔室内部的终冷却部件。通常是围绕在生长区域周围的、内部有盘管或夹层的金属屏壁。液氮在其中循环,使其外表面温度降至极低。

  系统的工作流程:

  液氮液位传感器检测到冷阱内液位低于设定值后,发送信号给系统编程控制器,控制器打开电磁阀,液氮在罐体收到系统控制器模式下,自动增压,并通过真空管道流入冷阱,终使液位上升至设定值,电磁阀关闭。液氮在冷阱内吸热汽化后形成的氮气,通过专门的排气管道安全地排出系统。

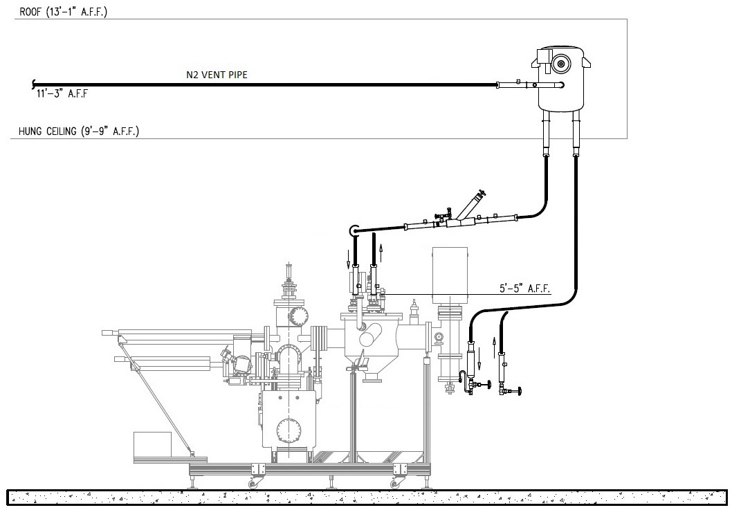
液氮系统流程图

液氮系统流程图

气液分离器结构

分离器结构

软管参数



相关案例


本文链接地址:http://www.cryoworkes.com/1516.html
定制服务、研发设计、一体化系统